Altana drewniana Alba- 6 kątna duża
Koszt dostawy widoczny po dodaniu do koszyka.
Termin dostawy dotyczy wyłącznie podstawowej konstrukcji altany.
Dodatkowe opcje mogą wydłużyć czas dostawy do 30 dni roboczych.
| Producent: | Artimbo |
|---|---|
| Czas dostawy: | 1-20 dni roboczych |
| Rozmiar: | 384 cm |
| Materiał: | Świerk |
Od 5960,00 zł

Altana drewniana 6-kątna Alba, przeznaczona jako rekreacyjna zabudowa ogrodowa.
Solidna i stabilna konstrukcja na profilowanych słupach o przekroju 12 x 14 cm.
Impregnowana ciśnieniowo w bezchromowym impregnacie Tanalith E. Może być malowana po montażu.
Drewno frezowane i fazowane.
Przeznaczona do samodzielnego montażu, malowania i pokrycia gontem bitumicznym.
Wykonanie z drewna świerkowego.
Dach częściowo zmontowany w 6 elementach z deski o gr. 1,7 cm.
Podstawowa wersja zawiera:
-wszystkie elementy drewniane gotowe do montażu (konstrukcja, kratki, deski okapowe, deska dachowa 17mm)
-łączniki metalowe (wkręty ciesielskie do montażu)
-instrukcje i rysunki techniczne.
Podstawowa wersja nie zawiera podstaw mocujących słupy do podłoża i gontów
Podłoga, ławki i stół dostępne za dodatkową opłatą
Może być wypełniona elementami ozdobnymi lub osłonowymi w uzgodnieniu z klientem, na przykład kratkami zamiast zastrzałów u góry.
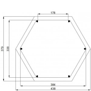
Altana Alba 6-kątna duża z kratkami wymiary:
| Wymiary/cm | |
|---|---|
| Przekrój słupów | 12 x 14 cm |
| Długość całkowita | 438 cm |
| Szerokość całkowita | 338 cm |
| Wysokość całkowita | 326 cm |
| Wysokość przejścia | 209 cm |
| Pochylenie dachu | 28° |
| Potrzebna ilość gontu | 24 m2 |
| Dopuszczalne obciążenie śniegiem | 0,75 kN/m2 |
| Podłoga(Opcja) gr. deski 2,5 cm | Grubość. 9,5 cm |
Wykonujemy również inne rozmiary altan na zapytanie.
Impregnacja ciśnieniowa
Standardowe zabezpieczenie drewna wykonywane jest za pomocą impregnacji próżniowo-ciśnieniowej w której stosujemy ekologiczny, bezchromowy środek TANALITH E. Impregnacja ciśnieniowa zabezpiecza drewno głęboko w swoim przekroju nadając lekkie zabarwienie, początkowo zielone, a pod wpływem promieni słonecznych, po kilku tygodniach nabiera ciepłej, oliwkowej barwy, która stopniowo, w ciągu kilku lat zmienia się w barwę srebrno szarą. Zaimpregnowane drewno można dodatkowo malować dowolnym środkiem impregnującym lub koloryzującym.
Kompleksowa impregnacja drewna
Oferujemy kompleksowe i skuteczne zabezpieczanie drewnianych produktów. Wykonujemy impregnację metodą ciśnieniową oraz zanurzeniową. Wykorzystujemy wyłącznie najwyższej jakości, bezpieczne środki, m.in. ekologiczny, bezchromowy środek TANALITH E (w przypadku impregnacji ciśnieniowej) na bazie miedzi, lub też olejowe, sprawdzone fińskie impregnaty koloryzujące. Stosujemy środki posiadające niezbędne atesty i certyfikaty jakości. Dzięki temu możemy uzyskać najwyższy stopień zabezpieczenia drewna przed grzybami czy owadami.
Impregnacja ciśnieniowa
Standardowe zabezpieczenie drewna wykonywane jest za pomocą impregnacji próżniowo-ciśnieniowej w której stosujemy ekologiczny, bezchromowy środek TANALITH E. Impregnacja ciśnieniowa zabezpiecza drewno głęboko w swoim przekroju nadając lekkie zabarwienie, początkowo zielone, a pod wpływem promieni słonecznych, po kilku tygodniach nabiera ciepłej, oliwkowej barwy, która stopniowo, w ciągu kilku lat zmienia się w barwę srebrno szarą. Zaimpregnowane drewno można dodatkowo malować dowolnym środkiem impregnującym lub koloryzującym.
Kompleksowa impregnacja drewna
Oferujemy kompleksowe i skuteczne zabezpieczanie drewnianych produktów. Wykonujemy impregnację metodą ciśnieniową oraz zanurzeniową. Wykorzystujemy wyłącznie najwyższej jakości, bezpieczne środki, m.in. ekologiczny, bezchromowy środek TANALITH E (w przypadku impregnacji ciśnieniowej) na bazie miedzi, lub też olejowe, sprawdzone fińskie impregnaty koloryzujące. Stosujemy środki posiadające niezbędne atesty i certyfikaty jakości. Dzięki temu możemy uzyskać najwyższy stopień zabezpieczenia drewna przed grzybami czy owadami.

Altany ogrodowe drewniane